Appartamento in Vendita a Pieve a nievole, Empolese

  • Riferimento: 3850
  • Disponibile per: Vendita
  • Zona: Empolese
  • Comune: Pieve a nievole
  • Anno di costruzione: -1
  • Tipologia immobile: Appartamento
  • Stanze: 4
  • Camere da letto: 2
  • Bagni: 1
  • MQ Totali: 104
  •    

IN VENDITA

€ 135.000

Descrizione

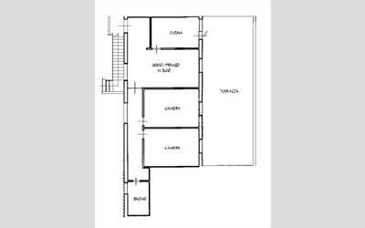
NOSTRA ESCLUSIVA - In contesto riservato ma servito, proponiamo appartamento libero su due lati, posto al primo ed ultimo piano di un più ampio fabbricato, composto da quattro vani oltre ad una grande terrazza. Si accede da scala esterna al fabbricato direttamente sulla zona giorno composta da ampio soggiorno con adiacente cucina che ha accesso alla terrazza. Guardando alla nostra destra troviamo invece il disimpegno sul quale affacciano le due matrimoniali ed il bagno. L'immobile è corredato da due posti auto assegnati.

Comprare casa non è mai stato così facile

Chiamaci (+39) 0572 954592 oppure Contattaci