Uffici in Vendita a Montecatini terme, Centro

  • Riferimento: 3884
  • Disponibile per: Vendita
  • Zona: Centro
  • Comune: Montecatini terme
  • Anno di costruzione: 1940
  • Tipologia immobile: Uffici
  • Stanze: 6
  • Camere da letto: 0
  • Bagni: 2
  • MQ Totali: 280
  •    

IN VENDITA

€ 180.000

Descrizione

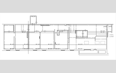
In posizione centrale e strategica, a pochi passi dalla piazza principale e da tutti i principali servizi, proponiamo in vendita un luminoso ufficio situato al quarto ed ultimo piano di un elegante edificio signorile dotato di ascensore. L'immobile si apre su un ingresso che conduce a un comodo corridoio di disimpegno, dal quale si accede ai vari locali che compongono la proprietà ed ai servizi. Gli ambienti, ben distribuiti e caratterizzati da una piacevole esposizione a sud, risultano particolarmente luminosi durante tutto l'arco della giornata, offrendo un contesto di lavoro confortevole e funzionale. Grazie alla posizione privilegiata nel cuore della città e alla disposizione interna degli spazi, l'immobile rappresenta una soluzione ideale per studi professionali, uffici tecnici, studi associati o attività di consulenza che desiderano operare in un contesto centrale e facilmente raggiungibile. L'unità immobiliare offre un interessante potenziale di valorizzazione data la possibilità di valutare il cambio di destinazione d'uso da ufficio a civile abitazione, previo studio di fattibilità tecnica e il versamento degli oneri previsti. Questa opportunità rende l'immobile particolarmente interessante anche per chi è alla ricerca di un investimento o desidera realizzare un appartamento esclusivo in una posizione centrale e servita.

Comprare casa non è mai stato così facile

Chiamaci (+39) 0572 954592 oppure Contattaci